最豐富的網上空間設計資源‧上萬張設計圖面及照片‧設計、施工、研究、教學、瀏覽...適用
回首頁
|
關於本資料庫
|
內容搜尋
|
會員帳戶
|
操作說明
|
網站地圖
|
聯絡我們
案例類型
住居空間、社區
辦公空間
政府機構、司法設施
企業、機構、基金會總部
教育、研究設施
文化、公益設施
博物館、美術館、藝廊
劇院、音樂廳、觀演空間
圖書館
博覽會、會議展覽中心
商店、零售、展示、櫥窗設計
更多項目>>
設計作者
歐洲
Aldo Rossi
Alvar Aalto
Bernard Tschumi
Bolles & Wilson
de Portzampark
David Chipperfield
Dominique Perrault
Gottfried Bohm
Herzog & de Meuron
James Stirling
Jean Nouvel
Mario Botta
Nicholas Crimshaw
Renzo Piano
Richard Rogers
Zaha Hadid
Alvaro Siza
Terry Farrell
Thomas Herzog
Hopkins Architects
Hans Hollein
Norman Forster
Rem Koolhaas
Santiago Calatrava
美洲
Cesar Pelli
Kevin Roche
Luis Barragan
Oscar Niemeyer
Peter Eisenman
Philip Johnson
Richard Meier
Morphosis/ Thom Mayn
SOM
Steven Holl
Dan Kiley
里卡多•萊格列塔
Arthur Erickson
費依•鐘斯
Glenn Murcutt
Louis Kahn
盧堡+尤戴爾
Michael Graves
亞洲
丹下健三
貝聿銘
安藤忠雄
妹島和世+凱撒立衛
紐澳及大洋洲
Philip Cox
更多項目>>
專題文章
普利茲克建築獎得獎者
更多項目>>
服務中心
本資料庫收錄書刊一覽表
世界設計案例資料庫使用說明
世界設計案例資料庫簡介
更多項目>>
會員帳號:
會員密碼:
﹝IP授權版﹞
‧加入會員
‧忘記密碼
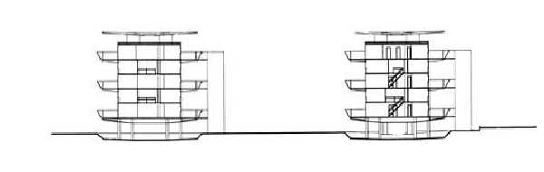
日本Makuhari公寓
-
裏奧拉教區中心
-Alvar Aalto作品
Jean Nouvel作品賞析
-
存入<我的相簿>
查看<我的相簿>
列印
上一筆
下一筆